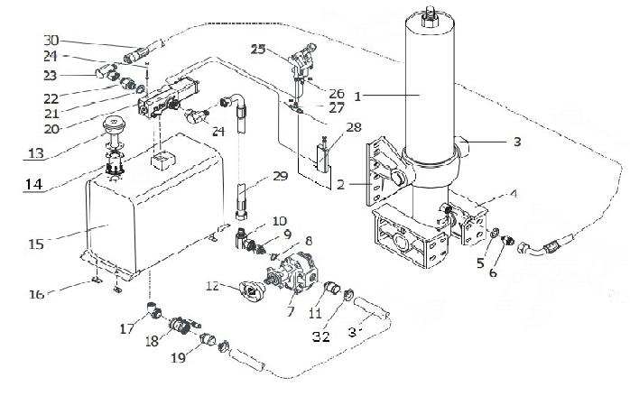
二、自卸車液壓系統組成


序號 名稱" />

公与媳系列100集,欧美精品久久久久a片,偷玩同学漂亮麻麻张嫣,波多野结衣网站

液壓油缸,工程油缸,泵車油缸,專用車油缸制造商-湖北佳恒科技有限公司

技術支持
您現在所在的位置:首頁 > 技術支持 > 保養與使用說明
自卸車液壓系統原理、組成及安裝----二、自卸車液壓系統組成
自卸車液壓系統原理、組成及安裝
                                        二、自卸車液壓系統組成


序號

名稱

數量

備注

 

序號

名稱

數量

備注

1

液壓缸

1

 

17

φ45球閥彎接頭

1

 

2

上支座(左)

1

 

18

φ45銅球閥

1

 

3

上支座(右)

1

 

19

φ45球閥直接頭

1

 

4

下支座

2

 

20

慢降氣控換向閥

1

 

5

φ33組合墊圈

1

 

21

φ33組合墊圈

1

 

6

1”轉換接頭

1

 

22

轉換接頭

1

 

7

齒輪泵

1

 

23

直角接頭

1

 

8

組合墊圈

1

 

24

直角接頭

1

 

9

轉換接頭

1

 

25

慢降組合控制氣閥

1

 

10

直角接頭

1

 

26

氣管接頭

1

 

11

直管接頭

1

 

27

氣管三通接頭

1

 

12

泵連接器

1

 

28

限位閥

1

 

13

空氣過濾器

1

 

29

高壓油管

1

 

14

加高法蘭

1

 

30

高壓油管

1

 

15

液壓油箱

1

 

31

低壓油管

1

 

16

油箱減震塊

4

 

32

管夾

2

 


返回列表
湖北佳恒科技股份有限公司 | 版權所有 鄂ICP備17026771號-1 十堰網站建設 | 制作維護
地址:湖北省十堰市高新區天馬大道387號 電話:400-885-7266 0719-7590366 7590668
--相關友情鏈接--
十堰網站建設
三一重工